悦达889城市广场

🧭项目背景

盐城悦达889城市广场位于江苏省盐城市亭湖区希望大道与青年路高架交口处(亭湖区政府东侧),是一个集购物、生活、娱乐、亲子与社交于一体的综合性商业地标。项目总建筑面积约 13 万平方米,其中包含 9 万平方米商业购物中心4 万平方米酒店与写字楼
作为盐城市重点城市形象展示工程之一,项目旨在打造兼具城市活力与人文体验的多功能城市客厅,为都市人群提供全场景生活体验。


🧱项目信息

  • 项目名称:盐城悦达889城市广场
  • 项目定位:满足都市人购物、生活、娱乐、亲子、社交需求的时尚型购物中心
  • 项目体量:商业约9万㎡,酒店及写字楼约4万㎡
  • 详细地址:江苏省盐城市亭湖区希望大道与青年路高架交口处(亭湖区政府东侧)
  • 项目属性:盐城市重点城市综合体与地标性商业项目
Rendering

效果图


🧩BIM 建模流程

1.建模目标与范围确定

  • 建模范围:幕墙表皮(玻璃幕墙、石材幕墙、仿石材铝板幕墙、铝板幕墙、真石漆)、土建梁柱板结构,BIM 建模工具:Rhinoceros
  • 确定冲突检测范围:幕墙与土建梁柱
  • 完成幕墙设计施工图纸,包括立面图、平面图、大样图
elevation_before

立面图

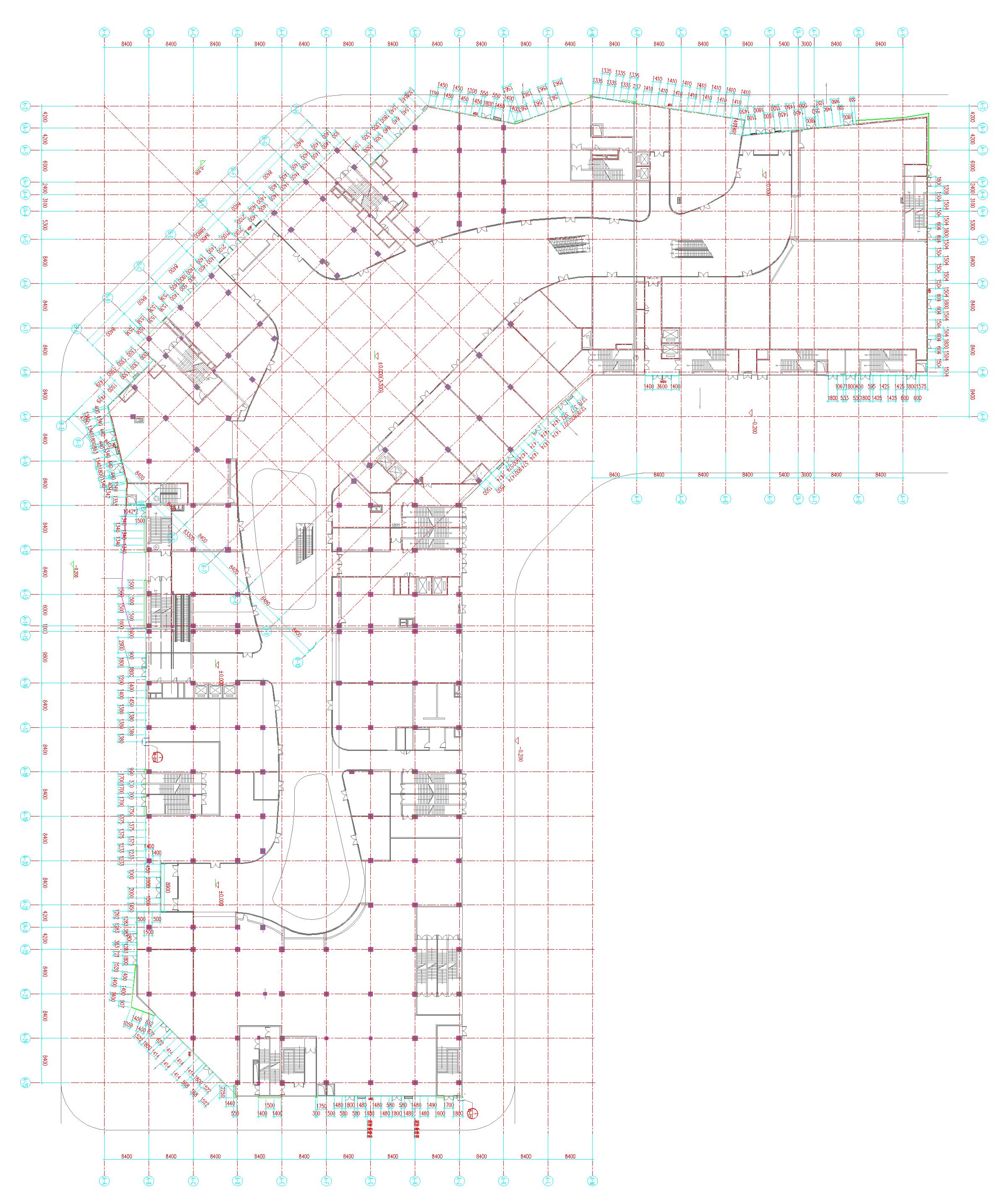
plane_before

平面图

2.Rhino 土建结构和幕墙建模

  • 建筑梁柱板结构搭建
  • 幕墙表皮搭建
model1

幕墙模型1

structure_model1

结构模型1

model2

幕墙模型2

structure_model2

结构模型2

model3

幕墙模型3

structure_model3

结构模型3

model4

幕墙模型4

structure_model4

结构模型4

3.Rhino 输出数据

  • 幕墙和结构冲突地方反馈,三层结构梁处和幕墙表皮有碰撞检出,提出反馈到建筑设计院,沟通解决
clash1

幕墙和结构冲突处

clash1

幕墙和结构冲突处

  • 异形区域通过模型生成完成面辅助幕墙图纸深化,包括立面图、平面图、剖面大样图
export_ele

立面图示例:导出立面

plane_output

平面图示例-导出异形幕墙完成线

section_output

剖面大样图示例-导出异形幕墙完成线

4.幕墙设计施工图完成

  • 根据 Rhino 模型精准导出异形幕墙区域处完成面,辅助完成施工图深化
  • 深化完成立面图、平面图和剖面大样图
ele1

深化立面1

ele2

深化立面2

ele3

深化立面3

ele4

深化立面4

plane_after1

深化平面-1层示例

section_after1

深化剖面-局部剖面示例


🔮总结与反思

  • 负责内容:Rhino 模型搭建,幕墙设计施工图绘制(立面图,平面图和大样图)。
  • 难点:一方面该项目幕墙种类众多,包括玻璃幕墙、石材幕墙、仿石材铝板幕墙和铝板幕墙,节点设计方面比较复杂,另一方面异形造型定位繁杂,设计和施工是个问题。
  • 解决方案:通过 Rhino 精确建模,有效减少设计冲突和精准定位,提升施工精度。
  • 经验总结:本项目进一步强化了我对幕墙设计施工图绘制的水平,对于 BIM 模型如何搭建有了更深的理解。